LOHAS studio
e002@OKUTA
2014/09/04
おかげ様で、、
木工事も終盤を迎え、
本日は鉄骨で作った『雲梯』の取付を行いました(*^^)v
まずは、久喜市にある『老川工業』さんへトラックで荷受け☆

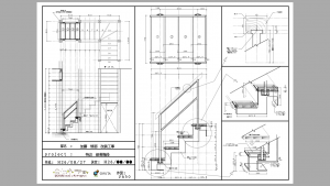
施工図通りに出来上がってるか、確認!

現場へ搬入し、大工さんと取付しますっ!!
下地調整しながら、しっかりと固定していきます(*^^)v
![IMG_4123[1]](https://www.okuta.com/blog/e002/wp-content/uploads/sites/27/2014/09/IMG_41231-150x150.jpg)
このスチール部分をペイントしていきます。
※本日は、下塗りのみ→出来上がりをまた今度UPします。。
![IMG_4137[1]](https://www.okuta.com/blog/e002/wp-content/uploads/sites/27/2014/09/IMG_41371-150x150.jpg)
別件で、いま施工図作成中の『鉄骨階段』を創るべく
詳細を老川さんへ相談させて頂きました(*^^)v

使用する部材や加工方法などいつも丁寧に教えてくれます。。

自分自身でまず施工図をおこしてみるのですが、
まだまだ老川さんには敵いません(・_・;)
老川工業さんは主に鉄骨階段→しかも螺旋階段の製作を得意としています。
よかったら、ホームページを見てみてください(^^)/
↓↓↓↓ クリック ↓↓↓↓

SNSでシェアする
担当者へ無料メール相談!お気軽にご相談下さい!
お問合せ・資料請求はこちらから
| 月 | 火 | 水 | 木 | 金 | 土 | 日 |
|---|---|---|---|---|---|---|
| « 7月 | ||||||
| 1 | 2 | 3 | 4 | 5 | 6 | 7 |
| 8 | 9 | 10 | 11 | 12 | 13 | 14 |
| 15 | 16 | 17 | 18 | 19 | 20 | 21 |
| 22 | 23 | 24 | 25 | 26 | 27 | 28 |
| 29 | 30 | 31 | ||||