LOHAS studio
e002@OKUTA
2014/10/17
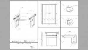
廃材を活かし、
特注のスチールデスクを製作しました(*^^)v

簡単に組み立てられるように、シンプルに納まりを考えました。

使用する部材は、鉄鋼屋さんに相談しながら
流通している安価な部材の組み合わせデス!

カラーは、艶消しブラックとカントリーグリーンを調合し、
深緑色(黒板みたいな)にしました!

天板は、余った床材 T15㎜を活かし、
捨て板に接着せずに、ただただ嵌め込んでいきますっ!
後々、汚れてしまったり、傷がついたり、樹種を変えて
雰囲気を変えて愉しむために、
簡単に取り換えられるように工夫しました。。

若干、大きい感じになりましたが、
図面を広げたり、下部はゴミ箱置き場にしたりと
重宝するデスクに仕上がりました(*^^)v
SNSでシェアする
担当者へ無料メール相談!お気軽にご相談下さい!
お問合せ・資料請求はこちらから
| 月 | 火 | 水 | 木 | 金 | 土 | 日 |
|---|---|---|---|---|---|---|
| « 7月 | ||||||
| 1 | 2 | 3 | ||||
| 4 | 5 | 6 | 7 | 8 | 9 | 10 |
| 11 | 12 | 13 | 14 | 15 | 16 | 17 |
| 18 | 19 | 20 | 21 | 22 | 23 | 24 |
| 25 | 26 | 27 | 28 | 29 | 30 | 31 |