家づくりのご要望・目的
中古マンションを購入され、念願のマイホームを手にしたG様ご夫妻。
ところが、寝室にしたいと考えていた部屋にはカビが生え、キッチンも手狭…。
これから長い付き合いになっていく大切なわが家だから、自分たちの好きなものや趣味を詰め込んだ、暮らしに馴染む住まいにしたい!とリノベーションを決意されました。
施工事例 ビフォー・アフター
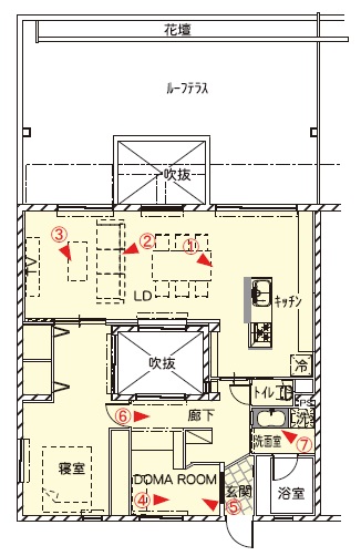
【家中、どこにいても爽やかな風がながれる家】
元々吹き抜けがあり、通風には恵まれていたG様邸。
それでも、部屋の戸を閉めてしまいがちな和室や戸の多さなどから、うまく機能しないのではないかと不安点がありました。
そこでデザイナーは、既存の窓を活かしながら、風の流れを遮る仕切りを可能な限り減らす間取りを提案しました。
まず、和室を廃し広いLDKに変更。洋室を土間にして開口を広げました。
他にも風を取り入れる工夫として、風の流れを遮ってしまう扉はできるだけつけないように。つけた方が良い所は開けきらなくても扉が邪魔にならないよう、引戸を採用しました。
そうして、回遊の間取りを生かした、家中に風が流れる空間へと見事生まれ変わりました。
問題だった寝室天井のカビは、調湿作用のある珪藻土に変えたこともあり、今ではカビの気配もありません。
自然素材が育むおいしい空気と、海からの風が気持ちよく流れる住まいになりました。
【マンションにガレージ!?趣味をもっと愉しめる住まいに…】
自転車、釣り、DIYに読書など…多彩な趣味をお持ちのG様ご夫妻。
強く希望されたのが、趣味の道具などを気兼ねなく置けるスペースでした。
そこで担当デザイナーと話し合い、思い切って洋室を土間にし、大切な自転車や釣り道具を収納できるスペースを設けました。
他にも趣味のDIYが楽しめるよう、作業台や棚を造作。
雨に濡れた自転車や汚れてしまった釣り道具などを入れるため、汚れやキズなどを気にせず使えるようベニヤ仕上げに。
床は汚れも味となる土間コンクリートを採用し、ガレージのように使える空間にしました。
インテリアには、海釣りをされるお二人にぴったりの、海の雰囲気を取り込んでいます。
タイルには海をイメージする素材感や色合いのものを、玄関の床や洗面台、キッチンの壁やカウンターなど様々な場所に散りばめました。
その他はシンプルにホワイトと茶でまとめ、一体感が出るよう木材の色味を統一。
海の風を家中で感じられる、シンプルナチュラルで、最高に気持ちの良い家になりました。




















