家づくりのご要望・目的
<2013年度ジェルコ(JERCO)デザインリフォームコンテスト 関東甲信越支部大会 入賞>
母娘、2人でお住まいのK様邸。
築30年経過したお家は設備も劣化が進み、断熱対策などは家を建てた当時のままの状態。
その為、室内にいても夏は暑く冬は寒い…。厳しい環境に悩まされていました。
間取りについても、寒くて暗い北側のキッチンや、食事をする和室の間には6畳の和室が跨っており、不便を感じる事もしばしば。
他にも段差があり使い勝手の悪い洗面室やお嬢様が仕事から帰ってきてもゆっくり入れないお風呂など、たくさんの問題が。
それらの問題を解消しつつ、より良い住まいにする為、リフォームが始まりました。
ただ問題をクリアするのではなく、会話をしやすいLDKや、互いの存在を感じられる空間をリクエスト。
「それ以外にも和室は残し、いままで通り床座リビングとして活用したい事や、1階でできるだけ生活しやすいLDKを提案してほしい、とお願いしました。」
詳しくはこちら→リノベーション特集
母娘、2人でお住まいのK様邸。
築30年経過したお家は設備も劣化が進み、断熱対策などは家を建てた当時のままの状態。
その為、室内にいても夏は暑く冬は寒い…。厳しい環境に悩まされていました。
間取りについても、寒くて暗い北側のキッチンや、食事をする和室の間には6畳の和室が跨っており、不便を感じる事もしばしば。
他にも段差があり使い勝手の悪い洗面室やお嬢様が仕事から帰ってきてもゆっくり入れないお風呂など、たくさんの問題が。
それらの問題を解消しつつ、より良い住まいにする為、リフォームが始まりました。
ただ問題をクリアするのではなく、会話をしやすいLDKや、互いの存在を感じられる空間をリクエスト。
「それ以外にも和室は残し、いままで通り床座リビングとして活用したい事や、1階でできるだけ生活しやすいLDKを提案してほしい、とお願いしました。」
詳しくはこちら→リノベーション特集
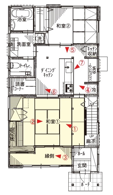
施工事例 ビフォー・アフター
間取り変更をするにあたり、壁面補強や筋交いを入れることで耐震性をアップ。1階のサッシを全て2重サッシに取替え、外に接する壁は断熱材を入れることで温熱性能を高め、冬寒く夏暑い環境を改善しました。
「お嬢様とお母様がもっとより良いコミュニケーション」がとりやすい空間をテーマにキッチンを1階の中心に移設。同空間に読書コーナーを設けることでくつろぐお嬢様と会話を楽しめるように。
廊下をなくすことで、全体的にオープンにできる区切りの無い空間ならではの行動の自由さや、どこにいてもお互いの存在が感じられる空間に。
「キッチンを回遊でき、料理の配膳を床座リビングまでしやすくなり、母・娘が手伝いあいながら生活できるようになりました。また、廊下がなくなった分リビングスペースが開放的になり、親戚の子どもも走り回りやすく、よくかくれんぼや追いかけっこをするようになりました。」
テーマに沿って空間をオープンにしたことで、設計の段階では予想していなかった生活習慣の良い変化をもたらし、断熱性能を上げたことで快適で住みやすい家へとリフォームされました。




















