家づくりのご要望・目的
<2015年度ジェルコ(JERCO)デザインリフォームコンテスト 全国優秀賞受賞>
セカンドハウスを趣味の空間に
海に近いセカンドハウスをご所有のO様ご一家は ご趣味の美術コレクションをより楽しみたいと モダンインテリアへのリフォームをお決めになりました。施工事例 ビフォー・アフター
美術コレクションと馴染む 気品ある空間づくり
白をメインに 豊潤な色合いの木素材を載せた 風雅な佇まいのO様邸。 以前も木素材は使われていましたが、素材を一から見直すことで お手持ちの美術コレクションと素晴らしく馴染む 気品に満ちた風格ある景色が完成しました。室内には 美術品の “見せ場” となる展示スペースと 収納スペースを分けて配置。 季節やご気分に応じて 手軽に交換ができるように 『手の届く高さ』 『無理のない大きさ』 での オープンな展示スタイルになっています。
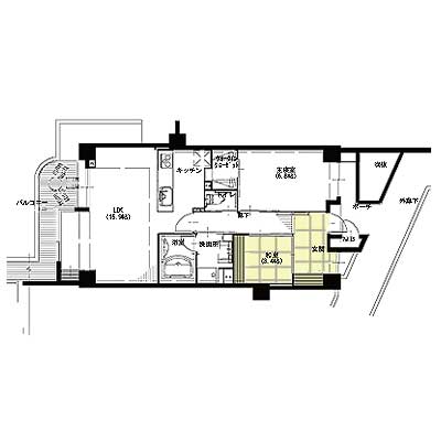
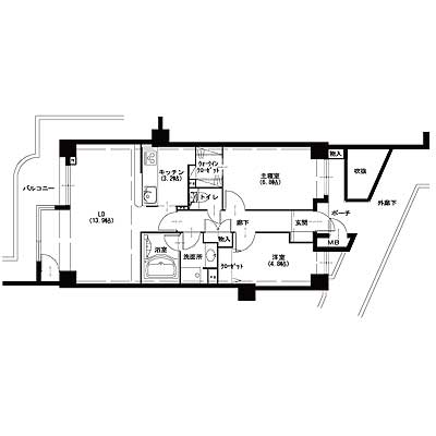
本宅と違和感のない バリアフリー環境
車椅子を使うご家族が快適な毎日を過ごせるよう O様やご家族から “ 使いやすさ・使いにくさ” を丹念に伺いながらのプランニングで バリアフリー環境の整備にも取り組みました。玄関土間は 隣接する洋室一部を使って 車椅子が回転できる大きさを確保。 取り崩した洋室は 車椅子のまま入室できる 土間つづきの和室になりました。 また邸内の床高を調整し 段差のないフラットな床面づくりを 出来る限り施しています。 生活に慣れた 「本宅」 と同じ環境を目指し 手すりなどの位置も 可能な限り同じ設定にそろえました。
広大なマリーナを臨むオーシャンビューのLDK
広大なマリーナを臨むオーシャンビューのLDKは ホワイトカラーの床フローリングで 爽やかなリゾートの装いです。壁一面に用意した 大きなディスプレイキャビネットには ご自慢のコレクションが並びました。 リビングは 窓一面に“海”が広がる贅沢な眺望。 キッチンは間仕切り壁を撤去して LDKと一体化する開放感に。 四季移り変わる自然美に 美しいコレクションが同居する 類まれなコンポジションが完成しました。
ガラス入りの雪見障子で空間を演出する -額縁ごしの風景美 内と外-
玄関ホールからつづく和室は その “内” と “外” で2つの愉しみが得られる アートギャラリーです。 和室から眺める 雪見障子越しの景色は 射し込む光の陰影が叙情的な 室内庭園のよう。 大理石調のホールから覗く室内風景は 建具で造られた枠組みが 茶室口を想わせる 『侘び』 の世界観。 入室 退出で 印象を変えてしまう 巧みな演出で 訪れるひとを楽しませてくれます。




















