家づくりのご要望・目的
<2014年度ジェルコ(JERCO)デザインリフォームコンテスト 全国優秀賞受賞>
お父様が倒れ、お母様の記憶が薄れる中。
これから先必要になってくるご両親の介護を想定して、長男ご一家がご両親との同居を決断しました。
転勤の多い仕事を持つ、長男家ご主人にとっては、ご自身がたとえご不在の中でも、
親世帯との適度な距離を保ちながら、「妻が・・・幼い子供たちが・・・」負担に感じることなく、互いが支えあえる「場所」になってほしいとの想いをお持ちでした。
お母様にとっては長年暮らし親しんだ家。
「家の感じ」の変化による違和感が生活上の不便、ストレスにつながり、病気の進行を早めてしまう不安があります。
これまでの「家」を大切に、壊さない工夫をご希望されました。
お父様が倒れ、お母様の記憶が薄れる中。
これから先必要になってくるご両親の介護を想定して、長男ご一家がご両親との同居を決断しました。
転勤の多い仕事を持つ、長男家ご主人にとっては、ご自身がたとえご不在の中でも、
親世帯との適度な距離を保ちながら、「妻が・・・幼い子供たちが・・・」負担に感じることなく、互いが支えあえる「場所」になってほしいとの想いをお持ちでした。
お母様にとっては長年暮らし親しんだ家。
「家の感じ」の変化による違和感が生活上の不便、ストレスにつながり、病気の進行を早めてしまう不安があります。
これまでの「家」を大切に、壊さない工夫をご希望されました。
施工事例 ビフォー・アフター
リフォームの根本にあるのは「住み続ける家。」です。
安全・安心のために耐震、耐久性を施し、「安らぎ」体感の温熱環境を整備しました。
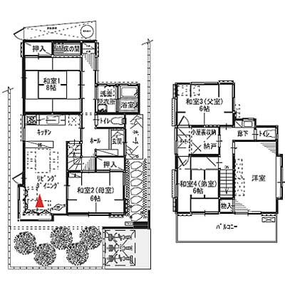
親世帯の主な生活空間となる1階には、間取りの工夫として、行き止まりのないバリアフリー設計を施しました。洗面・トイレ・浴室をつなぐ水廻り動線が一直線に配置されています。
またお母様に既知感を持って頂けるよう、間取りの大幅改変は避け、これまで暮らされた家の和風情が残る情緒ある空間を用意しました。
2階は子世帯の暮らすスペース。55平方メートルという限られた空間にキッチン・水廻り・寝室といった4人の生活拠点すべてを盛り込みました。
遊び心たっぷりの小屋裏収納などを活かし、収納も完備しています。
今は幼稚園に通う双子のお嬢様たちとの「体温感じる」慈しみを目指し。大家族で住む、支え合う時間と距離をゆっくりと紡いでいける家。
そこに住む皆さまの‘個’に響く「活きる愉しみ」を随所にプラスしています。




















