家づくりのご要望・目的
〈ジェルコリフォームデザインコンテスト2015 関東甲信越支部 優秀賞受賞〉
この佇まいを維持しながら綺麗に暮らしたいと思うものの、 折々に頂くご贈答品や 仕事のために使っている本や資料で お気に入りのNOOK(※ノック)やダイニング・キッチンが物で溢れかえってしまうことに悩んでおられました。
そこで収納計画をしっかりと見直して 本来“安らぐ”場所のNOOKを取り戻すため リフォームを始める事に。「新築当初からのホワイトテイストは大好きだけど、少し変化も欲しくなった」 とリフォームを好機に 室内インテリアのブラッシュアップも図ります。
物が溢れた邸内を 収納見直しで快適に!
ホワイトインテリアの素敵な景観を持つM様邸。この佇まいを維持しながら綺麗に暮らしたいと思うものの、 折々に頂くご贈答品や 仕事のために使っている本や資料で お気に入りのNOOK(※ノック)やダイニング・キッチンが物で溢れかえってしまうことに悩んでおられました。
そこで収納計画をしっかりと見直して 本来“安らぐ”場所のNOOKを取り戻すため リフォームを始める事に。「新築当初からのホワイトテイストは大好きだけど、少し変化も欲しくなった」 とリフォームを好機に 室内インテリアのブラッシュアップも図ります。
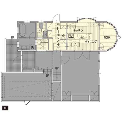
- NOOK(ノック)
- 住まいの片隅や隠れ場所という意味、既存の住まいに存在した空間のこと。
施工事例 ビフォー・アフター
動線の見直しで もっと暮らしやすく -収納不足も解決!-
収納力不足から 生来の素晴らしい景観と各室の役割が十分活かせず 使いにくい状況にあったM様邸。そこでダイニングキッチンの配置に着目して ユーティリティ - キッチン - リラックス空間(NOOK)を直線に繋げるシンプルな動線に変更を図りました。 動線の起点となる 中央部にはキッチンを据え 両サイドに機能空間と リラックス空間を設ける 役割分離型のプランです。
誕生!『家事室・ユーティリティルーム』 『NOOK(ノック)』はより快適に
新しく誕生した 機能空間“ユーティリティ”ルームは 独立した家事スペースです。 大きな収納棚を持つ室内には 室内物干しやアイロン仕事も楽ラクできるテーブルを用意しました。 趣味にも使える十分な広さになっています。もう1室は 静謐なひとときを過ごすリラックス空間 “NOOK(ノック)”。 落ち着いたマリンブルーの天井に シャンデリアのふっくらしたフォルムが上品に調和した エレガンスなフレンチインテリアの室内観です。
この2室の役割や個性を明確にしたことで 仕事・食・和みといった“生活場面” がより快適に。 また不足していた 「収納」 は 動線上に確保・配置して 必要な時にすんなり出入れ・整頓ができるようになりました。
清純の白トーンに合わせてデザインをブラッシュアップ
築23年の埃を払い ご家族お気に入りのホワイトインテリアをより引立てる デザインのブラッシュアップにも取り組みました。DKは清純な白トーンに合わせて 温和な色合いのブラウン系オイルを木素材に塗装。 脇役には優雅なレリーフやアーチの鉄パーツのアクセント。 リユースを決めたトール本棚やナラ床材とも馴染みの良い 擦れた古材や渋みを帯びたタイルを加えて力強さをプラス。 カッチリしすぎず少しくだけたパリ気風を感じるインテリアです。
NOOKはカラークロスとこだわりのカーテンでより印象的な空間に仕上りました。 オリジナル ステンドグラスから届く光彩は 日々姿を変える美しい光景。 「いつまでも綺麗を保ちたい」 そんな気持ちにさせるデザインコンテンツです。

麗しき百花繚乱のフレンチインテリア
フレンチクラシカルな麗しのアイコンで優美な雰囲気のM様邸です。ロマンティックな洗面台はシャンパンゴールドの上品な輝き。厳選されたカーテンは透け感のある大人シックな立ち姿。DKには 素材感の豊かなブリックタイルに 愛らしく個性的なレリーフや優雅なラインをさりげなく織り交ぜました。気品ある洗練さに ほんのり柔らかなカラーを与えて自分らしく崩した 優しく潤いある室内です。
機能空間ユーティリティルームとリラックス空間 NOOK(ノック)のある暮らし
書類や荷物が集中し 使いにくくなってしまったDK周辺。そこで中央のキッチンを基点に 両サイドの室内を機能空間とリラックス空間へ大きく分離しました。家事室を兼ねるユーティリティルームは室内干しまで出来るたっぷりの奥行です。すっきりとしたNOOKにはデザイン性を考えた収納を造作。こだわりのカーテンとカラークロスがヨーロピアンな世界観を決定づけています。■施主様の声
(LOHAS studioスタッフと)一緒に吟味した内装に満足。その後 他の箇所も素敵にしたくなり・・・工事後に購入した雑貨等の画像を送って相談を進めました。
(スタッフにお話しくださいました)
忙しい日々を過ごされているご主人様ですが リフォームをしてからは仕事から早々と帰宅されるようになったとか。「人は空間でお酒を呑むんだな・・・」と NOOKでお酒を嗜まれるひとときがお気に入りなのだそう。




















