家づくりのご要望・目的
<2013年度ジェルコ(JERCO)デザインリフォームコンテスト 関東甲信越支部大会 入賞>
中古マンションの購入をきっかけに、リフォームも検討していたS様。
物件購入・資金計画からリフォームまでトータルにご依頼いただきました。
プランニングスタート時は出産間近だった奥様、この家で子育てするにあたり、プロの意見を聞いて納得のいく家造りをしたい。
子どもがすくすく育つ楽しい家にしたいとご希望されていました。
中古マンションの購入をきっかけに、リフォームも検討していたS様。
物件購入・資金計画からリフォームまでトータルにご依頼いただきました。
プランニングスタート時は出産間近だった奥様、この家で子育てするにあたり、プロの意見を聞いて納得のいく家造りをしたい。
子どもがすくすく育つ楽しい家にしたいとご希望されていました。
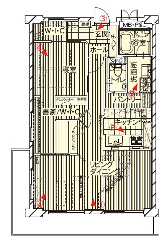
施工事例 ビフォー・アフター
子育てが始まるお二人になるべく想像して頂けるように、デザイナー自身の経験も交えて慎重にプランニング。
家族に優しい自然素材はもちろん、水廻りの見直し、全体の家事動線など様々な部分に配慮しまいした。
施主様からは「家事動線、子育て動線がとても良い家となりました。ドアをマガジンラックにするなど、遊び心が嬉しい。居室側とリビング側をまっすぐ風が通るようなパッシブな間取りも子どもを育てる環境に適していてとても良かったです。」とお喜びいただけました。
もちろん、今後お子様が成長されたときや生活パターンに変化がある時のことも考えた間取りとなっています。
家族みんなと一緒に心地良く時を重ねていける、理想的なリフォームとなりました。


















