家づくりのご要望・目的
<2015年度ジェルコ(JERCO)デザインリフォームコンテスト 一般社団法人住宅リフォーム推進協議会会長賞受賞>
<第3回 埼玉県環境住宅賞」入選>
幼い頃から何度もこの家に通っていたというT様は 「思い出も含めて受け継ごう」 そう決心され リフォームに踏みきりました。
ご祖父母の遺影と仏壇を飾るスペースを設けて ご親族がいつでも気持ちよくお参りに来られるようにしたい。
和風家屋から一新した雰囲気に造り変えて 趣味をもっと満喫できる「男の書斎」を造りたい。
暗く 風の通りが悪い1階フロアを改善したい。
壊すのでなく「受け継ぐ」意志に応える家創りへ
室内の温度変化を少なくする断熱計画や自然素材の採用 陽射しの届く採光計画などLOHAS studioの「Passiv design(パッシブデザイン)」で 快適な住環境を創りあげます。
<第3回 埼玉県環境住宅賞」入選>
受け継ぐ家だからこそ 心地よさが続くPassiv design(パッシブデザイン)で家づくり
かつてT様のご祖父母が暮らした築40年の一戸建ては、その老朽化が目立ちはじめたことから取り壊しの話が出始めていました。幼い頃から何度もこの家に通っていたというT様は 「思い出も含めて受け継ごう」 そう決心され リフォームに踏みきりました。
ご祖父母の遺影と仏壇を飾るスペースを設けて ご親族がいつでも気持ちよくお参りに来られるようにしたい。
和風家屋から一新した雰囲気に造り変えて 趣味をもっと満喫できる「男の書斎」を造りたい。
暗く 風の通りが悪い1階フロアを改善したい。
壊すのでなく「受け継ぐ」意志に応える家創りへ
室内の温度変化を少なくする断熱計画や自然素材の採用 陽射しの届く採光計画などLOHAS studioの「Passiv design(パッシブデザイン)」で 快適な住環境を創りあげます。
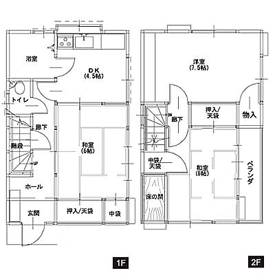
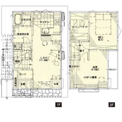
施工事例 ビフォー・アフター
Q値1.9 広さを犠牲にしない こだわりのプラン
目指すは Q値 1.9。 約18坪・狭小住宅と言われるT様邸の断熱プランは 居室の広さをなるべく犠牲にしない方法で 計画されました。窓は世界トップクラスの断熱性を持つ 『Low-Eトリプルガラス(樹脂窓)』 と 欧米で人気の高い “蜂の巣形状の空気層” を持つ 『ハニカムサーモスクリーン』 のダブル仕様です。 床・壁・天井の断熱は外気に接する部分を中心にセルロースファイバーで施工しました。
省エネの快適生活は ローコストのライフサイクル
ほか省エネ機器の積極利用や 内装に珪藻土など自然素材を採りいれ 継続的な「心地よい生活」の土台を築きました。 自然の陽光や風を迎え入れ 自然素材の効果を十分に発揮するパッシブ住宅の誕生です。省エネルギーで暮らす環境整備と同時に 建築構造の安全性も見直して 耐震1.10 を取得しました。暗く 風の通りが悪かった 1階フロアは 新たな窓計画と建具を無くしたオープンスペースで 毎日が明るい 涼やかに風の抜ける室内になりました。
趣味に没頭できる ディープなDJブースが完成!
1階/2階で内装テイストをガラリと変えた点も大きなポイントです。 ご親戚などお客様を迎える1階はナチュラルで柔らかい印象。 プライベート全開で過ごしたい2階は アンダーグラウンドのディープな装いで、趣味に没頭できる DJブース 『男の書斎』 を実現しました。
「受け継ぐ」からこそ目指した -Q値1.9 Passiv designの家-
Q 値 1.9 を示す パッシブ住宅として生まれ変わったT様邸。 厳冬 2月に 温湿度計測を行ったところ 外気の温度変化に左右されず 一日を通して一定の室温と 40%台での一定湿度を示しました。 ちなみに屋外・雨天時の湿度は 90%台。 邸内の安定した環境を改めて再認識できます。 家自身が適切な湿度・温度を作り出す“ カラダ想い”の快適な室内です。

趣味を満喫する男の棲家 -コックピット書斎-
アナログ盤のジャケ写が見え隠れする 秘めたグルーヴを蓄えたこの空間は T様 独り占めの DJブース 兼 コックピット書斎です。 ダークトーンでまとめた床はLOHAS material アッシュ材。 壁は琥珀色の珪藻土。 セルロース断熱材で断熱機能も付与しました。 純粋に趣味に没頭できる 夢のような男の書斎が完成しました。









