家づくりのご要望・目的
<平成27年度 キッチン空間アイデアコンテスト優秀賞受賞>
お子様のご成長にあわせ 『ひとりずつの個室を作ってあげたい』 その想いから子世帯と親世帯(一部)の改装リフォームをご希望されました。
父親であるご主人は---
3人の子どもたちと共に体力増進できる遊具を室内に作って欲しい
母親である奥さまは---
リビングが家族それぞれの「支流」の場所になるように・そうあり続けられるように工夫して欲しい
ご夫婦それぞれの子どもを想う温かな願いを乗せ 家族全員の快適な家づくりを叶えるリフォームに取り組みます。
育ち盛りの3兄弟に個室を!
Y様ご一家は 育ち盛りの男の子・3人兄弟と暮らす6人家族。お子様のご成長にあわせ 『ひとりずつの個室を作ってあげたい』 その想いから子世帯と親世帯(一部)の改装リフォームをご希望されました。
父親であるご主人は---
3人の子どもたちと共に体力増進できる遊具を室内に作って欲しい
母親である奥さまは---
リビングが家族それぞれの「支流」の場所になるように・そうあり続けられるように工夫して欲しい
ご夫婦それぞれの子どもを想う温かな願いを乗せ 家族全員の快適な家づくりを叶えるリフォームに取り組みます。
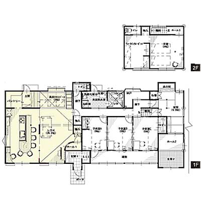
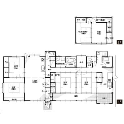
施工事例 ビフォー・アフター
遊びを通じて 体力増進 + 集中力強化!
周囲を田畑が囲む ゆとりある敷地のなか どこにいても『ゆとりと遊び』が感じられる空間づくりを Y様は目指しました。その象徴はリビングに顕われたグリーン色の「雲梯(うんてい)」。 “3兄弟がそろって体力増進できるように” とリビング併設の高床スペースに造作されました。 高床スペースは “遊び” のほか “休息” もできる多目的なリビングです。 PCコーナーや本も置ける棚を完備、 小上がりは窓から風がそよぐ心地よいごろ寝スペースとしても使えます。
家族の気配を感じる 安心の間取り
3人のお子さまそれぞれには 個室が用意されました。 3人の個室を 一直線に並べた配置で 間仕切りを開閉することで 大きな1部屋にも 3つの個室にも使えるフレキシブルなプランです。それぞれ個室へは必ずリビングを経由して向かう 川でいえば「支流」の位置関係。 奥様が望んだ「気配を感じる」動線に仕上がりました。勾配と奥行差を活かした 悠々快適LDK
家族が集まるLDKはかつての2和室を加えて大きな間取りを造りました。 6人家族がゆったり快適に過ごせる 広々とした空間です。 天井一部には勾配を与え 奥行と高低差がつくる“変化”を“愉しめる”開放的な室内を実現しました。またこれに並行して屋根裏断熱や廊下との温度差解消を図る断熱計画を実行! 省エネやバリアフリーにも対応しています。
室内環境の見直しは 暮らして初めて実感できる 「暮らしやすさ」の大きな基盤。 子どもたちが受け継ぐ「箱」の未来を 縁の下から支えていきます。

限界までスペースを活用! 間仕切りを使って 個室にも 大部屋にも
兄弟3人が直線で繋がった 3つの個室は 大きな引戸を開閉することで“ひとつの大部屋”にも“3つ分の個室”にも可変する柔軟な間取りスタイルです。友だちが大勢集まれば年代ミックスで多人数でも遊べ 集中したいときには一人の空間を楽しめます。間仕切りの上部は風・光を通す小窓を用意。兄弟のつながりを感じる 温もりある室内です。
こどもパワー全開で暮らす おおらかなプラン -遊び&学び-
キッチンやリビングと空間を共有する多目的スペースは 「遊び」の詰まった 子どもにとって夢のような居場所です。体を使う遊びのほか パソコンや読書といった静かな遊びも同居する“なんでもOK!”の自由な場所。ご兄弟の個室へは雲梯そばの扉を通じて移動する動線。個室に入っても ご両親やご祖母様はリビングでゆったりと気配を感じながら お子さまを見守れます。
シーンにあわせて適材適所 収納をたっぷり造る!
使いたいのに「道具」が見つからない。どこにあるかはわかるけど出しにくい不便な場所…。そんな経験はありませんか?Y様邸では“使いたい”シーンに見合う関連性の高い場所に収納コーナーを設けました。そのほとんどが今まではデッドスペースだったまさに隠れた場所。リフォームで生れた数多くの便利な収納には、可変式の棚を要所要所に設置して自在な『棚配置』ができるようにひと工夫。欲しい場所にあるから使いやすい便利な暮らしがはじまります。■施主様の声
育ち盛りの子供たちと共に大忙しな日々、リビングで寛ぐ、高床スペースでごろん、雲梯で体力増進!? と家族みんなの時間を存分に満喫しています。「いってきまーす」「ただいま?」の声が響くリビングが何より嬉しい。











