家づくりのご要望・目的
駅からも近く、閑静な住宅街にお住まいのM様。
「この地をもともと気に入っていましたが、近所に気に入った中古物件を見つけたんです。」
次男の幼稚園により近く、広さも申し分ない築35年の物件。
古い物件だったことから、耐震補強なども兼ねながら暮らしやすい環境にリフォームをすることを決めて購入されました。
賃貸時代も戸建てにお住まいだったM様。
その経験から、自分たちの生活パターンや動線については把握しており、新居のイメージはしっかり固まっていました。
ご自分で大枠の図面も引き、後は形にしてもらえる会社を探すだけ。
デザインと技術力にピンと来た事から、LOHAS studioへご依頼いただけることになりました。
「この地をもともと気に入っていましたが、近所に気に入った中古物件を見つけたんです。」
次男の幼稚園により近く、広さも申し分ない築35年の物件。
古い物件だったことから、耐震補強なども兼ねながら暮らしやすい環境にリフォームをすることを決めて購入されました。
賃貸時代も戸建てにお住まいだったM様。
その経験から、自分たちの生活パターンや動線については把握しており、新居のイメージはしっかり固まっていました。
ご自分で大枠の図面も引き、後は形にしてもらえる会社を探すだけ。
デザインと技術力にピンと来た事から、LOHAS studioへご依頼いただけることになりました。
施工事例 ビフォー・アフター
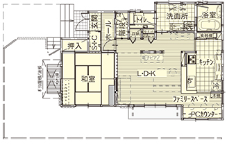
M様からのご要望は以下の通り。
・家族がほとんどの時間を過ごす1階のため、食事から入浴までの日常生活が1階で完結する間取りであること。
・LDKを広くしてファミリースペースを儲けたい
・キッチンは対面式で回遊動線にしたい
・階段はリビングインにする
これらの要望をふまえ、性能面・デザイン面からもM様に満足いただけるよう、知恵を絞りました。
まず、耐震診断をもとに構造の一部を解体・補強。
壁を壊して広げたリビングに残った柱は、自然と空間に溶け込む形で棚などに利用しています。
床・壁・天井・屋根の各部に断熱材セルロースファイバーを入れ、1階には複層ガラスのサッシを採用。
断熱性能を高めることで、一年中快適な空間を実現しました。
M様がインテリアで大事にされたのが、床の素材。
「手持ちのアカシアの家具に合うよう、考えた末に選んだのがアカシアという素材です。不揃いな木目の感じが気に入りました」。
自然素材をふんだんに取り入れながら、ポイントにブルーやイエローのアクセント壁を採用することで、空間を魅力的に見せています。
暮らしに合わせたリフォームで、動線・デザイン・性能に満足のいく、心地よい住まいを手に入れたM様ご家族でした。




















