家づくりのご要望・目的
ご結婚をきっかけに家づくりをスタート! -こだわりと自然素材がいっぱい-
ご結婚を機にご実家の敷地内に新築をご検討されていたT様。自分たちのこだわりを詰め込んだ家づくりをしたい!とOKUTAの注文住宅でフルオーダーメイドのに家づくりを始めることに。限られた土地・スペースの中で、最大限理想を叶えられるよう、スタッフと一緒に情報収集に取り組んでくださいました。
2階建てのご実家と隣接することもあり、平屋を選択。
一律に作られた工業製品が苦手、というT様のお住まいは、自然素材を採用することはもちろんのこと、外観から室内の仕上がりに至るまで、知恵と工夫、ご夫婦のこだわりがいっぱいに詰まったお家となりました。
施工事例 ビフォー・アフター
アメリカンスタイルにお気に入りをMIX!?グレー×白で統一感のある空間に?
外国の家のようなスタイルのある家づくりを希望されていたT様。アメリカンスタイルでまとめた外観と、カリフォルニアスタイルにハワイアンテイストをプラスした室内。テーマカラーを「グレーと白」に決めることで、様々な要素を組み合わせても統一感のある空間に仕上がりました。自然素材で脱ナチュラル
自然素材の良さを知り、室内には無垢床と漆喰を採用。見た目がナチュラル・カントリー調になってしまうことは避けたいと考え、床は白で塗装。キッチンも白でまとめました。キッチン収納の取っ手はご自身で購入されたアイアン製に変更。古材風のクロスがアクセントになりました。無駄のない家事導線
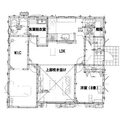
玄関⇒キッチン⇒洗面室⇒お風呂場の流れが間取りのポイントになっているT様。玄関からキッチンへとつながる通路を確保したことで、一度リビングを経由することなく、ダイレクトにキッチンへ。扉を開けるわずらわしさもなく、ストレスフリーに。さらにキッチン横には洗面室を兼ねた脱衣所、お風呂場へと続きます。玄関からキッチン、お風呂場へ、一直線に結ぶことで、リビング空間へ雑多なものを持ち込まずに完結できます。
洗濯機も収納!?適材適所の収納計画
20畳の大空間を備えたLDK。生活感が出ないようにと片付けが行き届いた空間は、適材適所に配置された収納のおかげ。LDK周辺のものは全て壁面収納に。玄関横に配されたシューズインクローゼットにはおしゃれなお二人の靴をたっぷり収納。日用品のストックなども収納でき、開放的な玄関となりました。シューズインクローゼットの手前にはルンバ基地(充電スペース)も確保。洗面室では目立ってしまう洗濯機もくぼみを作ってしっかり収納。お気に入りの空間に仕上がりました。
魅力的なアメリカンハウスを新築で -三角屋根が目印!-
三角屋根が可愛い レトロでモダンなアメリカンハウス。その外壁には米国から輸入した樹脂サイディングが施工されています。白い素敵なテラスはご夫婦がDIYで組立・塗装をされたプロ顔負けの力作! 骨格となる柱・梁には県産材をご採用され 県の補助金を受けることができました。屋根には太陽光パネルを設備し不測の事態には電力を自宅でまかなうことが可能です。




















